什邡公園里
設計師:胡兵 ? 風格:其他 ? 小區:什邡公園里 ? 人氣:21382
法式輕奢風,藏不住的浪漫

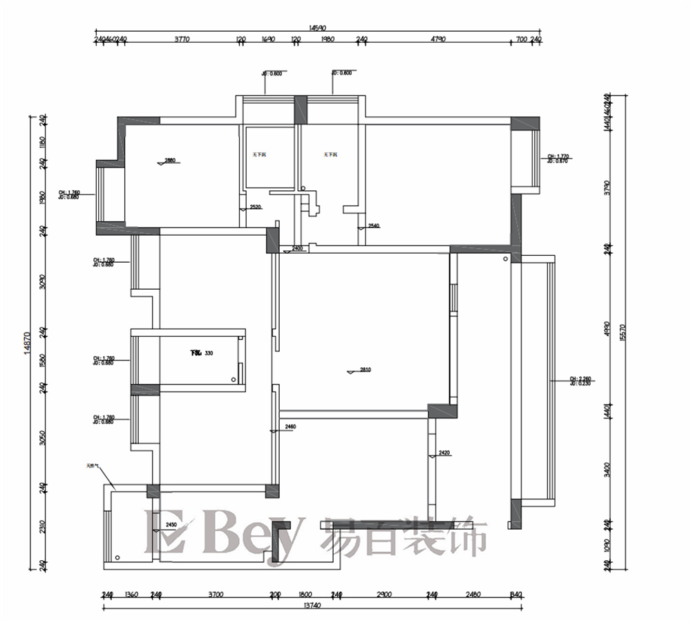
▲ 原始結構圖
本案為一家四口居住,恩愛的夫妻,一雙可愛的孩子,基于業主對房屋功能需求,將原戶型四室兩廳三衛改造為了三室兩廳兩衛加開放式的書房來滿足業主的日常生活需求。
原始圖廚房門洞狹窄,影響空間的采光與通風,設計師選擇將挨廚房臥室和次衛與原餐廳區域和廚房打通,讓整個客廳區域更加通透大氣,廚房設計隱藏式的推拉門在滿足餐廳與廚房一體獲得開放大氣空間的同時,也能滿足爆炒時對油煙的隔離。
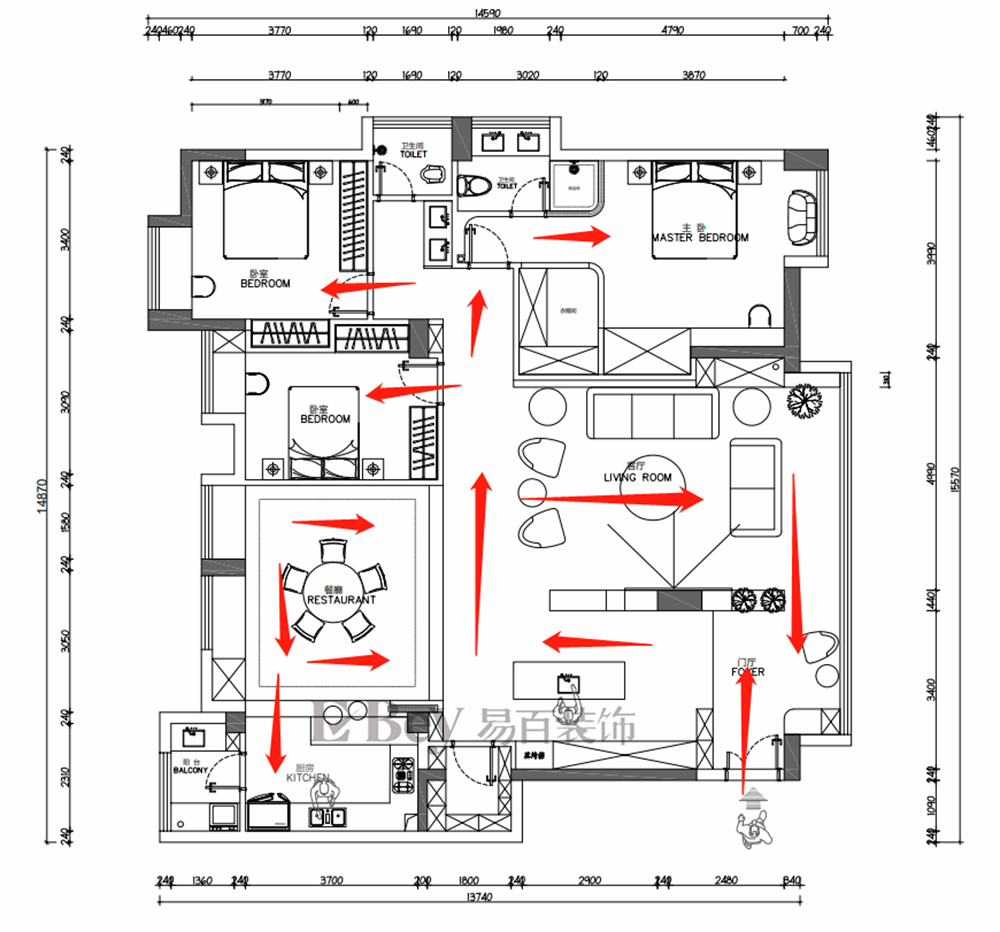
▼ 改造后平面
客 廳
客廳采用貫穿式設計、摒棄傳統法式的繁復、冗雜,整體以極簡為基礎、輕奢為意境,借助法式元素和意式軟裝的碰撞,折射出業主對高品質生活細節的追求。
無主燈設計+暗藏式燈光,讓空間更具氛圍感。懸掛式電視墻將客廳區域一分為二,既保證了客廳的私密性,又使整個空間顯得更加高級。


餐 廳
餐廳區域搭配了新穎的亞克力餐椅,個性且獨特,透明的椅身在空間中若隱若現,令人著迷...
主 臥
主臥延續了整體的法式輕奢風格,再融入了流行的玻璃磚作為點綴,讓空間更具時尚氣息。

兒 童 房
兒童房采用淺色藝術漆,舒適柔和的色調上再加上少許的亮色暈染,使整個空間色彩既能和諧統一,又突出了視覺層次感。

